详细介绍:
XVM-A振动电机的技术特点:
1.此型号振动电机系采用VIMARC**技术设计生产的高品质振动电机。
2.**的设计技术:所有参数的计算及其优化设计均由计算机工作站完成。精密的加工工艺、严格的质量体系,保证了振动电机工作状态下各部件配合、承力在**佳范围内。
3.特殊的电磁设计:振动电机所需要配置的定、转子均采用具有导磁性能的硅钢片,减少铁芯的涡流损耗,保证强大的起动力矩,可快速达到额定运转速度。
4.重载型轴承设计:所采用轴承均为重载型特制轴承,足以承受和传递径向激振力和轴向负荷,并有良好的散热能力。双重密封设计,保证在严重粉尘环境下的轴承室清洁。选用进口耐高温轴承锂基脂润滑油,延长轴承使用寿命。
5.无极调节:振动电机两端的激振块上标有精确的刻度盘,可以非常容易的调节激振力及工作力矩从零到**大的无极调节,满足工作需要。
本文由:
振动电机 www.zdsbdj.com 整理发布
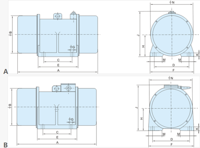
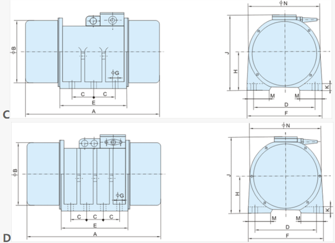
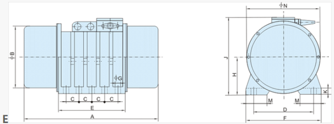
XVM-A振动电机外形及安装尺寸






